Colony Park Community Rises in NE Austin
Colony Park, a 3000-unit mixed-use project by Catellus, is underway in NE Austin.





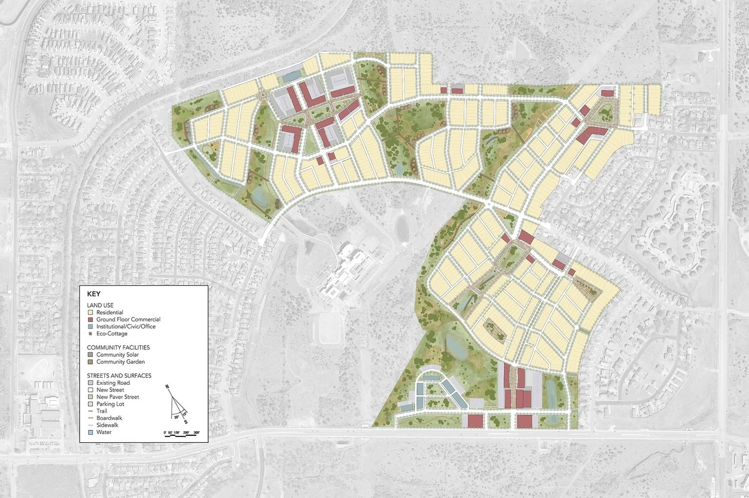
Colony Park Sustainable Community, a 3000-unit mixed-use project, is under construction on Loyola Lane between Johnny Morris Road and Decker Lane in Northeast Austin. Developed by Catellus Development Corporation with architecture by Farr Associates & Urban Design Group.
Amenities include a health care center, parks, open spaces, walkable streets, and various housing types. Retail and institutional spaces are also planned, but no affordable housing units are included.
The project aims to create a vibrant community hub with diverse uses and amenities. Construction is ongoing, with no disclosed completion timeline.
Project Details
- Address
- Loyola Lane between Johnny Morris Road and Decker Lane, Northeast Austin, TX
- Status
- under construction
- Units
- 3000