Colony Park Community Rising in NE Austin
Colony Park, a 3000-unit mixed-use project by Catellus, is underway in NE Austin.





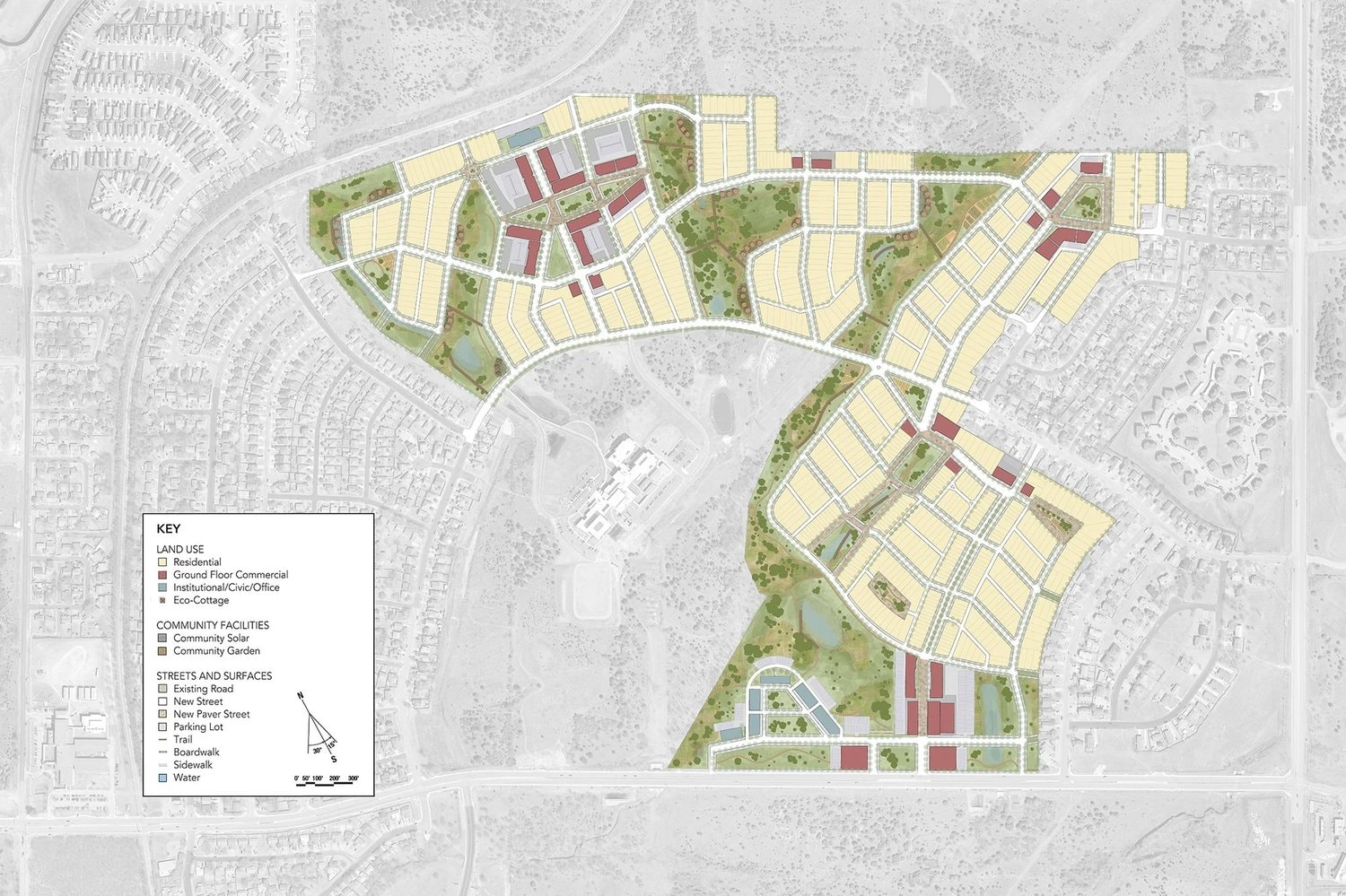
Colony Park Sustainable Community, a 3000-unit mixed-use development, is under construction at Loyola Lane between Johnny Morris Road and Decker Lane in Northeast Austin. Developed by Catellus Development Corporation with architecture by Farr Associates and Urban Design Group.
Features include parks, open spaces, a health center, institutional and office spaces, retail areas, walkable and bikeable streets, healthy food options, and educational facilities.
No affordable units are planned, but the project aims to enhance community accessibility and livability through its comprehensive amenities.
Project Details
- Address
- Loyola Lane between Johnny Morris Road and Decker Lane, Northeast Austin, Texas
- Status
- under construction
- Units
- 3000