Two Towers and 4201 S Congress Approved in Austin
Two Towers and 4201 South Congress, a 379-unit project, approved in Austin.





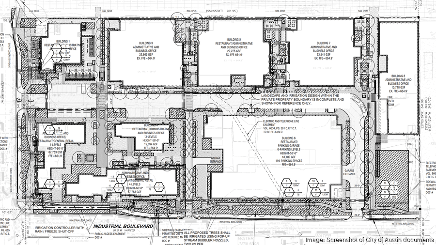
Two Towers and 4201 South Congress, a 379-unit mixed-use development, approved for West Martin Luther King Jr. Blvd & West 18th St, and 4201 South Congress Ave in Austin. Developed by Redcar Properties with architecture by Michael Hsu Office of Architecture.
Features include 494 parking spaces, with completion by January 31, 2029. It blends residential and commercial spaces, enhancing the urban landscape.
Located in the St. Elmo District, it aims to boost local infrastructure and provide new opportunities for residents and businesses.
Project Details
- Address
- West Martin Luther King Jr. Boulevard & West 18th Street; 4201 South Congress Avenue, Austin, TX
- Status
- approved
- Units
- 379
- Expected Completion
- 2029-01-31